Pietrowice Wielkie, Żerdziny

Dom na sprzedaż

Opis nieruchomości

Oto oferta dla tych, co nie chcą mieszkać w mieście a mimo to mieć miasto „pod ręką”.

Żerdziny – niewielka wieś położona przy granicy z Raciborzem.
Z terenu działki, na którym położony jest oferowany dom mamy ładny widok na Racibórz.

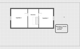
Oferuję do sprzedaży budynek jednorodzinny o powierzchni użytkowej 133 m2, posiadający:
- na parterze: duży 30 m2 salon, kuchnię, łazienkę i dwa pokoje
- na piętrze dwie sypialnie
.

Budynek jest częściowo podpiwniczony.
Budynek przeznaczony jest do remontu.

Na działce o powierzchni 891 m2, znajdziemy jeszcze dawną stodołę wykorzystywaną
aktualnie jako 2 garaże.


Dostępne media: woda, prąd ( siła), kanalizacja (szambo).

Budynek wpisany jest do gminnego rejestru zabytków.

Zapraszam na wirtualny spacer po budynku :
https://sb360.online/98nmr5m
 
Zapraszam do kontaktu:
Maciej Karpiński
Tel. 602 389 466



Wynagrodzenie pośrednika – 3.500 zł
 

Nota prawna

Opis oferty zawarty na stronie internetowej sporządzany jest na podstawie oględzin nieruchomości oraz informacji uzyskanych od właściciela, może podlegać aktualizacji i nie stanowi oferty określonej w art. 66 i następnych K.C.

Szczegóły oferty

Symbol oferty TOP-DS-1045
Powierzchnia 133,00 m²
Powierzchnia działki 891 m²
Liczba pokoi 5
Rodzaj domu dom jednorodzinny
Standard
Liczba pięter w budynku 1
Garaż na dwa samochody
Stan prawny Własność
Okna PCV
Instalacje niewymienione
Kształt działki trapez
Pokrycie dachu dachówka betonowa
Stan budynku do remontu
Ogrodzenie działki mieszane
Rok budowy 1925
Woda jest
Dojazd asfalt
Otoczenie działki zabudowane
Ogrzewanie własne dla budynku
Prąd jest
Kanalizacja szambo

Lokalizacja

Kalkulator kredytowy

PLN
%
Wysokość raty

Kalkulator kosztów

PLN
PLN
PLN
PLN
PLN
PLN
%
PLN
Podatek od czynności cywilno-prawnych
Taksa notarialna (opłata notarialna)
VAT od taksy notarialnej (opłaty notarialnej)
Wniosek do WKW
VAT od wniosku do WKW
Prowizja agencji nieruchomości
VAT od prowizji agencji nieruchomości
Wypisy aktu notarialnego - około
RAZEM (cena + opłaty)

Podobne oferty

dom na sprzedaż - Pietrowice Wielkie

dom na sprzedaż

Pietrowice Wielkie
3 pokoje 180,00 m2 994,44 zł/m2

Napisz do nas

Proszę wypełnić to pole
Proszę wypełnić to pole
Proszę wypełnić to pole
Proszę wypełnić to pole
Trwa wysyłanie...

Ta strona wykorzystuje pliki cookies w celach statystycznych oraz w celu dostosowania naszych serwisów do indywidualnych potrzeb klientów. Zmiany ustawień dotyczących plików cookie można dokonać w dowolnej chwili modyfikując ustawienia przeglądarki. Korzystanie z tej strony bez zmian ustawień dotyczących cookies oznacza, że będą one zapisane w pamięci urządzenia.

rozumiem